«Это — середнячок». После двухчасовых споров Градсовет отправил на доработку проект яхт-клуба

Участники обсуждения уверены, что здание клуба необходимо рассматривать в комплексе со всей территорией набережной.

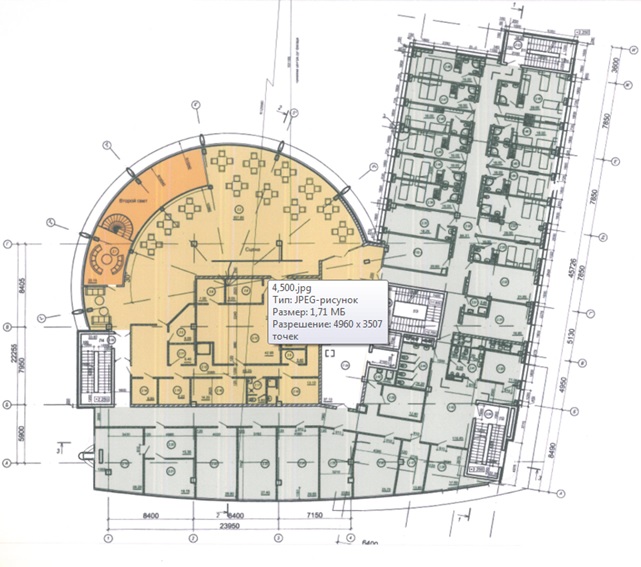
«Это — середнячок». После двухчасовых споров Градсовет отправил на доработку проект яхт-клуба - Фото 1
«Это — середнячок». После двухчасовых споров Градсовет отправил на доработку проект яхт-клуба

Ожесточенная дискуссия разгорелась сегодня на Градостроительном совете в ходе обсуждения эскизного проекта губернского яхт-клуба «Коматек» на Кирова, 40. Многие архитекторы не хотели рассматривать его как отдельный элемент набережной Верх-Исетского пруда. По мнению архитектурной элиты города, необходимо разработать комплексный проект всей территории набережной от улицы Фролова до площади Субботников и уже в него вписывать яхт-клуб.

 

Множество взаимных обвинений и упреков прозвучало в ходе обсуждения, кто должен разработать единый проект, а также по поводу незаконной постройки для временного хранения яхт.

 

В итоге почти двухчасового обсуждения было принято решение отправить проект на доработку с повторным рассмотрением на Градсовете.

 

«Это — середнячок». После двухчасовых споров Градсовет отправил на доработку проект яхт-клуба - Фото 2

Проектом предполагается возведение пятиэтажного здания со спортивным залом, гостиницей на 60-80 мест, кают-компанией, зоной общепита, магазином и офисами. Второй этаж объекта планируется отдать областному спортивному клубу инвалидов-колясочников «Родник». Парковка на территории клуба не предусмотрена. Инвестор проекта пояснил, что у яхт-клуба заключен договор с двумя частными стоянками на предоставление 44 машиномест.  

 

Главный архитектор Тимур Абдуллаев тут же заметил, что предварительные договоры на парковку ничего не значат и что хозяйство яхт-клуба намного больше территории земельного участка под строительство. После чего напомнил участникам Градсовета, что один самовольно построенный ангар (эллинг) на территории набережной у яхт-клуба уже есть. И что его архитектурное решение недопустимо для данной территории.

 

Глава яхт-клуба «Коматек» Юрий Крюченков категорически не согласился с обвинениями главного архитектора по поводу незаконной постройки, заметив при этом, что она временная:

 

«Это здание согласовано в минприроде, Роспотребнадзоре, МЧС. Получение разрешения на строительство упирается в вас, Тимур Насырович. Мы пришли к вам, а вы сказали, что архитектура должна быть, как у « Ельцин-Центра». «Нет «Ельцин-Центра» — нет подписи».

 

«Это — середнячок». После двухчасовых споров Градсовет отправил на доработку проект яхт-клуба - Фото 3

На сторону Тимура Абдуллаева встал заместитель начальника департамента архитектуры, градостроительства и регулирования земельных отношений администрации Екатеринбурга Сергей Косенко:

 

«Двадцать метров от воды — это территория, которая ничем и никем не должна заниматься. Даже на маленький киоск необходимо получать разрешение, а здесь целый ангар».

 

Поддержал в этом вопросе экспертов и директор Уральского исследовательского и проектно-конструкторского института Российской академии архитектуры и строительных наук Александр Долгов:

«Возведение ангара — это практически полузахват федеральной земли. Нельзя мириться с такими нарушениями. Данную ситуацию надо развернуть в цивилизованное русло».

 

«Это — середнячок». После двухчасовых споров Градсовет отправил на доработку проект яхт-клуба - Фото 4

 

Если на строительство ангара разрешения выдано не было, то на яхт-клуб оно имеется, более того, возведение объекта уже началось.

 

«Согласно ГПЗУ, на набережной будет универсальный спортивный зрелищный комплекс. Тут не говорится ни про торговые площади, ни про гостиницы. Получившееся архитектурное выражение далеко от разрешения на строительство. Я видел множество яхт-клубов за границей. Все они взаимосвязаны с окружающим пространством. «Коматек» внешне больше похож на небольшой торговый центр. Даже носом здание смотрит в торец другого объекта. Хочется, чтобы яхт-клуб взаимодействовал с пространством воды, набережной и чтобы сразу было видно, что это именно яхт-клуб», — говорит Тимур Абдуллаев.

 

По словам Михаила Вяткина, здание яхт-клуба — это не архитектурный шедевр и не просчет. Это — середнячок. Яхт-клубу не хватает территории.

 

«Надо искать компромисс и решение для всей территории от улицы Фролова до площади Субботников. Администрация должна составить техзадание, провести конкурс на разработку концепции набережной. Отдельно, с привлечением заказчика клуба, можно провести конкурс на архитектурный облик самого здания», — говорит Михаил Вяткин.

 

«Это — середнячок». После двухчасовых споров Градсовет отправил на доработку проект яхт-клуба - Фото 5

Главный художник Екатеринбурга Дмитрий Фогель также считает, что комплекс яхт-клуба надо увязывать с городской средой и набережной. Просто рассматривать архитектуру объекта смысла нет.

 

После того как все желающие высказались, началось голосование, но и здесь пришли к единому мнению не сразу. Одни предлагали остановить стройку и доработать проект. Вторые — обязать застройщика провести независимый конкурс по архоблику яхт-клуба. Третьи уверены, что заказчик яхт-клуба должен разработать проект всей набережной.

 

«Это — середнячок». После двухчасовых споров Градсовет отправил на доработку проект яхт-клуба - Фото 6

В итоге было принято решение, что проект доработает сам заказчик, после чего его повторно рассмотрят на Градсовете.

 

 

Просмотров: 11981

Читайте нас в соцсетях
Этот сайт использует cookie
для хранения данных. Продолжая использовать сайт, вы даете согласие на обработку персональных данных в соответствии с политикой конфиденциальности