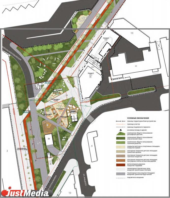
Дизайн-проект благоустройства территории на Февральской Революции – Антона Валека уже одобрен.

В Екатеринбурге показали, как преобразится территория рядом с будущей высоткой «Навигатор» на месте недостроя на Октябрьской площади. Дизайн-проект масштабного благоустройства территории на Февральской Революции – Антона Валека, где сегодня располагается парковка, уже одобрен Советом по развитию рекреационных и общественных пространств города.
Как рассказал JustMedia.ru основатель архитектурного бюро Archinform Тимур Абдуллаев, парковочное пространство будет расположено под территорией сквера в двухуровневом подземном паркинге. Открытую парковку частично сохранять, но ее площадь будет существенно уменьшена.
Территория нового библиотечного сквера, будет разделена на несколько зон. Так, здесь появится игровая площадка со световой инсталляцией, песочница с местами отдыха, интерактивная звуковая игровая площадка, сенсорная игровая площадка с фактурным покрытием, игровая площадка с урбанистическими качелями.
На обновленной территории предусмотрены: амфитеатр с зоной Wi-Fi, терраса с местами отдыха под навесами, лаунж-зона с гамаками, спортплощадка, велосипедная дорожка и общественный туалет.
«Ключевым центром коммуникации и социальной активности формируемого пространства является амфитеатр. Эта универсальная площадка для проведения лекций и творческих вечеров, литературных чтений, мастер-классов, театрализованных представлений и кинопоказов.
Также здесь предполагается обустроить места с выделенными покрытиями для размещения летних кафе с мобильной мебелью и легкими навесами, кофе-пойнт, функционирующий как в летнее, так и в зимнее время.
«Многофункциональность территории позволяет удовлетворить запросы разных групп населения и наполнить территорию разноплановыми активностями. Уникальный образ сквера формируется также современными малыми архитектурными формами и элементами благоустройства. Решения выходов и въезда-выезда из подземного паркинга созвучны с архитектурой расположенного рядом многофункционального жилого комплекса», - говорит Тимур Абдуллаев.
Архитектор также отметил, что немаловажное значение имеет возможность всесезонного использования территории. Здесь можно проводить новогодние представления, инсталляции, выставки ледяных фигур, установить новогоднюю ель.
Напомним, УГМК к 2023 году планирует построить на месте долгостроя на Октябрьской площади многофункциональный комплекс, состоящий из 12-этажного офисного здания и 25-этажного жилого дом.
ФОТО: архитектурного бюро Archinform.
Просмотров: 5844
Автор: Екатерина Турдакина