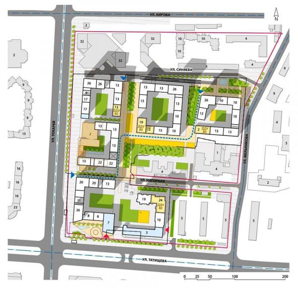
В Екатеринбурге презентовали новую концепцию жилого квартала «Нагорный».

В Екатеринбурге представили обновленную концепцию развития территории завода «Уралкабель» на ВИЗе, где будет построен новый многофункциональный жилой комплекс.
«С одной стороны, на площадке завода есть промышленная территория для реновации. С другой стороны, нужно позаботиться не только о комфорте тех, кто поселится в новом ЖК, но и о тех, кто уже живет в этом квартале. Нам было важно обеспечить доступную благоустроенную среду и предложить при этом оригинальные архитектурные решения, не забыв об идентичности места. Для этого мы решили организовать пешеходный бульвар от перекрёстка улиц Татищева и Токарей в сторону парка XXII партсъезда, а также предложили реновировать ДК «Металлистов», который вполне может претендовать на роль районного культурно-развлекательного коммьюнити-центра», - говорит главный архитектор бюро In.Form, которое разрабатывало проект, Тимур Абдуллаев.
Разнообразие городской среды в квартале решено обеспечить за счет разных конфигураций домов, приемов на фасадах и использования разных материалов. Одной из архитектурных доминант комплекса будет фитнес-центр в виде стеклянного куба с 25-метровым бассейном на верхнем этаже. Объект разместиться на перекрестке улиц Татищева и Токарей. Там же будет организована общая зона рецепции для входа на всю территорию комплекса.
Напомним, впервые проект ЖК «Нагорный» был презентован в середине сентября текущего года. Реализовываться МФК будут в два этапа. Помимо жилья, коммерческих помещений и фитнес-центра, здесь разместиться встроенный детский сад на 80 мест и Центр культуры УГМК. Закрытая территория ЖК «Нагорный» полностью подчинена комфорту жителей: здесь появятся зоны для тихого отдыха, work-out и спортивная площадка.
ФОТО: In.Form
Просмотров: 13066
Автор: Редакция JustMedia.ru