Застройщик случайно опубликовал фрагмент Генплана.

Накануне общественных слушаний по проекту планировки Юго-Западного лесопарка в связи со строительством микрорайона Академический организаторы слушаний выложили иллюстративный материал.
То ли по недосмотру, то ли намеренно в него попали фрагменты Генплана Екатеринбурга до 2050 года. Теперь-то мы знаем, какими городские власти видят в будущем Объездную дорогу и развязки, расположенные на ней. Проекты настолько фантастичны, что средств, заложенных в программу «Столица» на них явно не хватит. Хотя до 2050 года все может измениться.
![]() |
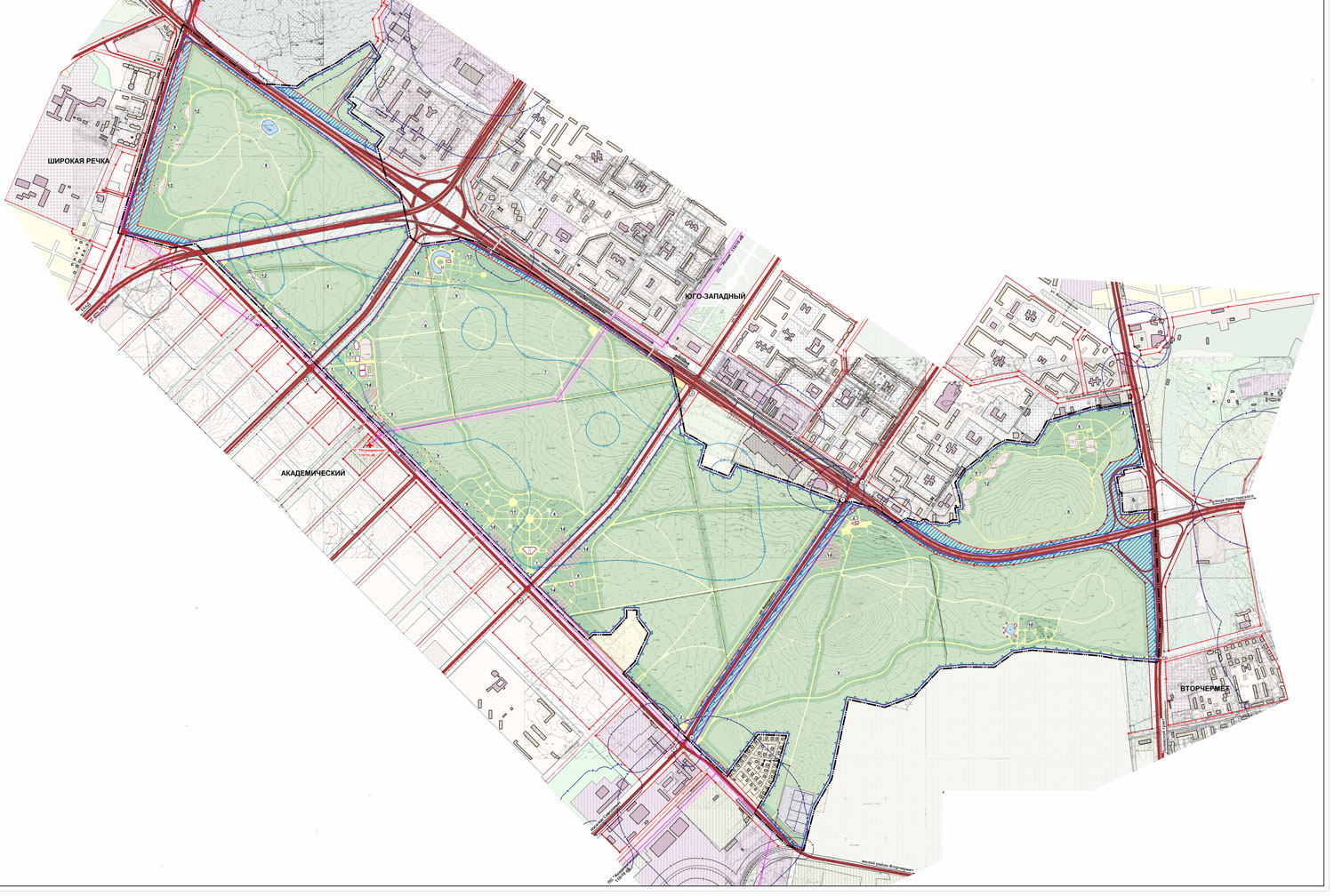
Общий проект планировки Юго-Западного лесопарка. С северной стороны его окаймляет Объездная дорога.
|
![]() |
Двухуровневая развязка Амундсена-Объездная. Напоминает проект развязки Московская-Объездная, предложенный архитектором Владимиром Злоказовым, который заурбили заказчики, предпочтя классический лепесток. Судя по всему, на Амундсена под мостом сделают светофоры, чтобы потоки могли поворачивать налево.
|
![]() |
Фантастическая развязка Серафимы Дерябиной-Объездная-Вильгельма де Генина. Трехуровневая. Третий уровень уводит с улицы Серафимы Дерябиной на пока еще не существующую Верхе-Уфалейскую (в другом проекте - улицу Барклая).
|
![]() |
Чкалова-Объездная. Еще один клон проекта архитектора Злоказова.
|
![]() |
Московская-Объездная. Единственная развязка, которую построят в рамках существующей программы "Столица".
|
![]() |
Светлореченская-Московский тракт-Объездная. Тоже двухуровневая, но не похожая на остальные.
|
Общественные слушания по теме «Развитие территории Юго-Западного лесного парка как рекреационной зоны района Академический» состоятся 22 августа, в 19.00 в актовом зале школы №16. Регистрация участников - с 18.00.
Просмотров: 14706
Автор: Евгений Катыхин
Фотограф: Андрей Старцев